Trilocale in vendita

Grugliasco, Via G. Lupo - Le Serre
€ 175.000
Prezzo aggiornato
3 locali 3 locali
74 Mq 74 Mq
1 bagno 1 bagno

Trilocale in vendita

Grugliasco, Via G. Lupo - Le Serre

Descrizione annuncio

In zona Centrale di Grugliasco, a pochissimi passi dal viale pedonale di Grugliasco, e dal Viale Gramsci: intervento edilizio che prevede la ristrutturazione totale e la riqualificazione di un edificio di due piani fuori terra. L'intervento consiste nella realizzazione di 5 appartamenti di varie tipologie con possibilità di modifica e personalizzazione del progetto.

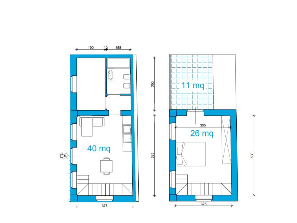
Appartamento VERDE: 3 locali con cantina piastrellata e collegata.

L'appartamento è composto da un ingresso living su zona soggiorno - cucina, una camera da letto matrimoniale, una seconda camera, antibagno e bagno. Al piano interrato si trova una cantina di 25 mq che viene consegnata piastrellata e collegata direttamente all'appartamento tramite una scala interna.

I pavimenti delle camere saranno realizzati in gres porcellanato aventi formato a scelta, e i rivestimenti della cucina saranno realizzati con piastrelle in ceramica mono cottura.

I serramenti esterni saranno realizzati con materiale PVC con doppi vetri, muniti di tapparelle motorizzate.

Le porte interne saranno della ditta Bertolotto.

Il portoncino d'ingresso sarà blindato.

L'impianto elettrico sarà realizzato in perfetta regola d'arte e in conformità alle norme CEI. Ogni camera sarà dotata di un numero definito di punti luce, punti presa, 1 punto rete/dati, 1 presa TV, 1 presa telefono.

L'appartamento sarà dotato di: videocitofono, predisposizione per impianto di climatizzazione, predisposizione per impianto di allarme.

L'impianto di riscaldamento è centralizzato con caldaia a condensazione, contatori di calorie e cronotermostato digitale. Il calore verrà distribuito tramite radiatori Zehnder serie Charleston a parete in acciaio con tubolari di colore bianco; il bagno sarà dotato di scaldasalviette.

La consegna è prevista entro il termine massimo di luglio 2026.

Al termine dei lavori verrà rilasciata idonea certificazione attestante la conformità dell'esecuzione degli impianti ai dettami della legge 46/90.

. L'acquisto non è soggetto ad IVA ma ad imposta di registro.

Mostra tutto

Nelle vicinanze

Trasporto pubblico Trasporto pubblico
Fermi
Fermi
1,6 Km
Paradiso
Paradiso
2,1 Km
stazione di Collegno
stazione di Collegno
1,6 Km
stazione di Grugliasco
stazione di Grugliasco
1,7 Km
Torino
Torino
80 m
Ricariche auto elettriche Ricariche auto elettriche
Collegno Pastrengo | ENELX
1,5 Km
Collegno Corso Francia | EnelX
1,7 Km
Tris Car Di Mina Giuseppe | EnelX
1,7 Km
COLLEGNO PASTRENGO 34/b | ENELX
1,9 Km
RIVOLI Via Pavia | ENELX FAST
2,1 Km
Scuole Scuole
Dante Di Nanni
380 m
Istituto Tecnico Industriale Statale Ettore Majorana
640 m
Scuola Elementare Giuseppe Ungaretti
760 m
66 Martiri
1,0 Km
Scuola elementare Guglielmo Marconi
1,1 Km
Farmacia Farmacia
Vecco
50 m
Farmacia
470 m
Farmacia Peirano
1,3 Km
Farmacia Nuova di Grugliasco
2,0 Km
Parafarmacia Conad
2,5 Km
Ospedali Ospedali
Guardia Medica
2,4 Km
Clinica della Memoria "Giovanni Paolo II"
2,7 Km
Supermercati Supermercati
Compro Qui
160 m
GS
230 m
Mercatò
760 m
Basko
850 m
Di Piu
960 m
Negozi Negozi
Panetteria
150 m
latteria - milk and food
280 m
Carrefour Express
450 m
Alimentari
660 m
Negozi
970 m
Bar Bar
Bar
120 m
Bar - tabacchi
520 m
Gelateria
570 m
Pausa Café
600 m
Bar Pa.Fi.
1,1 Km
Ristoranti Ristoranti
rosticceria
50 m
Nord Ovest
210 m
Pizzeria degli Angeli
260 m
Ristoranti
310 m
Da Costa
500 m
Mostra tutto

Caratteristiche

Rif.:
61122619
Piano:
Su più livelli di 1
Totale piani:
1
Camere da letto:
2
Arredamento:
Assente
Condizionamento:
Predisposizione impianto
Mostra tutto
Prezzo Prezzo
€ 175.000
Rata mutuo Rata mutuo
€ 825 / mese
Proponi il tuo prezzoProponi il tuo prezzo

Classe Energetica

D
D
D
D
D
D
D
D
D
Anno di costruzione:
2025
Riscaldamento:
Centralizzato
Tipo impianto:
A radiatori
Tipo alimentazione:
Metano

Prezzo ridotto di €1 (9%%)

Ti interessa visionare l'immobile?

Fissa un appuntamento  Fissa un appuntamento

Richiedi informazioni

Clicca su Leggi per aprire l'informativa
* Questi campi sono obbligatori

Calcola il tuo mutuo

Semplice e senza impegno
Anticipo

( % )
Mutuo

( % )

pochi semplici passi

inserisci i tuoi dati
Questionario completato
Grazie per aver richiesto un appuntamento senza impegno con un nostro Consulente del Credito e Assicurativo.

Hai inserito correttamente tutti i dati necessari e a breve riceverai una e-mail con un link da convalidare per inviare i tuoi dati.
Affiliato
Studio Grugliasco Sas
Viale Gramsci, 156/158 10095 Grugliasco (TO)

Il nostro staff


  • Assunta Donadio
    Affiliata

  • Mihaela Alexandra Bumbescu
    Coordinatrice

  • Francesco Puleo
    Collaboratore

  • Lorenzo Patruno
    Collaboratore
Viale Gramsci, 156/158 10095 Grugliasco (TO)
Zona: Grugliasco - Viale Gramsci - Centro - B.ta Paradiso - B.ta Quaglia
Mostra su mappa
Orari: LUN-SAB: 9.00-12.30 / 15.00-19.30
Affiliato
Studio Grugliasco Sas
Viale Gramsci, 156/158 10095 Grugliasco (TO)

2026 Tecnocasa Franchising S.p.A. - P. IVA 08365160152 - Via Monte Bianco 60/A 20089 Rozzano (MI). Ogni agenzia ha un proprio titolare ed è autonoma. Privacy policy | Policy utilizzo | Cookie policy