Quadrilocale in vendita

Grugliasco, Via cavalieri di vittorio veneto
€ 249.000
4 locali 4 locali
122 Mq 122 Mq
2 bagni 2 bagni

Quadrilocale in vendita

Grugliasco, Via cavalieri di vittorio veneto

Descrizione annuncio

Appartamento in Vendita a Grugliasco - Via Cavalieri di Vittorio Veneto

Se cerchi un’ottima opportunità in una splendida zona di Grugliasco, questa è quella che fa per te! Situato in una posizione privilegiata di fronte al parco culturale di Villa Claretta e con una vista mozzafiato sul Parco San Sebastiano, questo appartamento rappresenta la soluzione ideale per chi desidera vivere immerso nella natura e nella tranquillità, senza rinunciare alla comodità.

Caratteristiche principali:

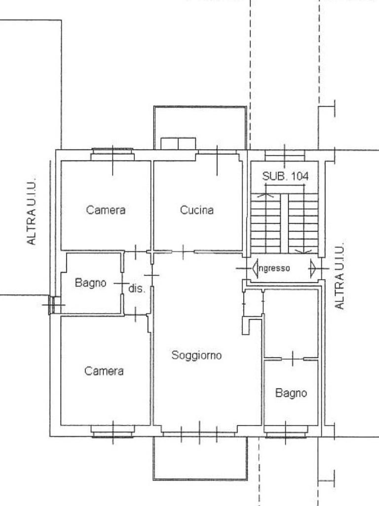
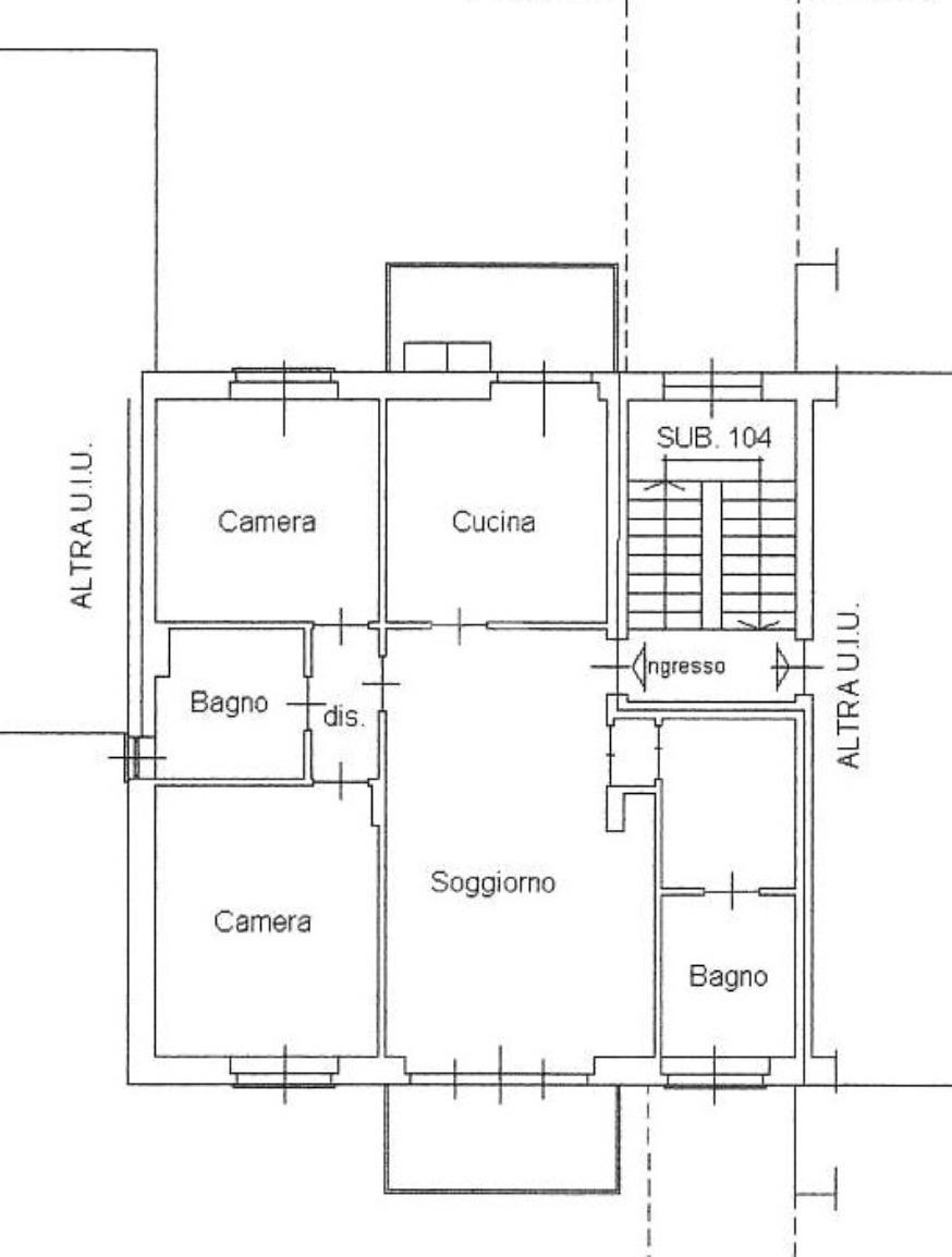
Posizione: Secondo ed ultimo piano di un piccolo stabile senza ascensore, costruito agli inizi degli anni '90. Zona silenziosa e panoramica, con esposizione ad ovest e est.

Interni: Ampio ingresso living in soggiorno luminoso, con balcone profondo che si affaccia sull’incantevole parco di Villa Claretta. La cucina abitabile, separata dal soggiorno, è dotata di un secondo balcone con esposizione ad est, affacciato su Parco San Sebastiano.

Spazi: Comodo ripostiglio, bagno finestrato e due camere da letto con finestre, disposte tramite un disimpegno centrale che conduce al secondo servizio.

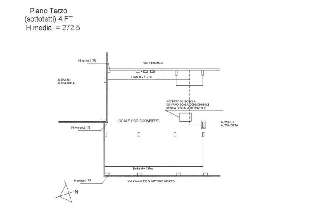
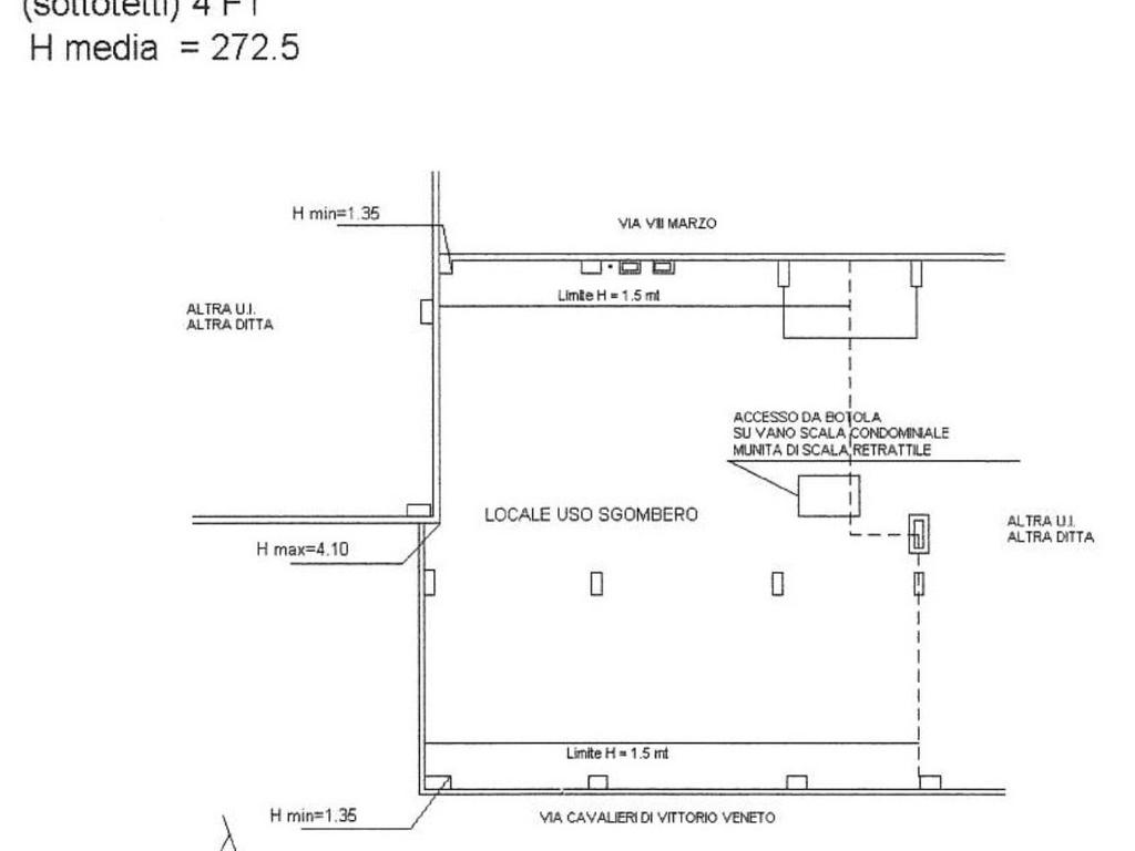
Locale sottotetto: Al piano superiore, proprietà di circa 60 mq grezzi e non abitabile, con altezza media di 2.72 metri, possibilità di renderlo abitabile grazie a un permesso già richiesto e a una scala interna. La zona può diventare un’ulteriore spazio abitativo o studio.

Accessori: Cantina quadrata al piano interrato e box auto singolo molto alto, ideali per spazio e comodità.

Dettagli extra:
L’appartamento è pronto per essere personalizzato e trasformato nella casa dei vostri sogni. La zona è tranquilla, circondata dal verde, perfetta per passeggiate e momenti di relax.

Il nostro consiglio?
Inserisci l’indirizzo su Google Maps, fai una passeggiata e lasciati conquistare dall’atmosfera di questo angolo di paradiso!

Se desideri ulteriori informazioni o una visita, non esitare a contattarci!

Mostra tutto

Nelle vicinanze

Trasporto pubblico Trasporto pubblico
Fermi
Fermi
1,8 Km
Paradiso
Paradiso
2,1 Km
stazione di Grugliasco
stazione di Grugliasco
1,5 Km
stazione di Collegno
stazione di Collegno
2,1 Km
Brissogne Capolinea
Brissogne Capolinea
3,0 Km
Ricariche auto elettriche Ricariche auto elettriche
Collegno Pastrengo | ENELX
1,9 Km
Tris Car Di Mina Giuseppe | EnelX
2,0 Km
Collegno Corso Francia | EnelX
2,2 Km
COLLEGNO PASTRENGO 34/b | ENELX
2,3 Km
RIVOLI Via Pavia | ENELX FAST
2,6 Km
Scuole Scuole
Istituto Tecnico Industriale Statale Ettore Majorana
710 m
Scuola Elementare Giuseppe Ungaretti
730 m
Dante Di Nanni
880 m
Facoltà di Agraria e Veterinaria
960 m
66 Martiri
1,1 Km
Farmacia Farmacia
Farmacia
460 m
Vecco
520 m
Farmacia Peirano
1,8 Km
Farmacia Nuova di Grugliasco
1,8 Km
Comunale 5 - Afc
2,3 Km
Ospedali Ospedali
Clinica della Memoria "Giovanni Paolo II"
2,7 Km
Guardia Medica
2,9 Km
Supermercati Supermercati
Compro Qui
410 m
Di Piu
430 m
Basko
450 m
GS
630 m
Penny Market
1,1 Km
Negozi Negozi
Alimentari
200 m
latteria - milk and food
370 m
Panetteria
440 m
Carrefour Express
740 m
Negozi
1,2 Km
Bar Bar
Bar
200 m
Gelateria
460 m
Pausa Café
470 m
Bar - tabacchi
740 m
Bar Pa.Fi.
1,6 Km
Ristoranti Ristoranti
Pizza Pazza
300 m
Pizzeria degli Angeli
350 m
Pausa Café
470 m
rosticceria
490 m
Nord Ovest
550 m
Mostra tutto

Caratteristiche

Rif.:
61114403
Piano:
2 di 2 (ultimo Piano)
Box:
1
Balconi:
2
Camere da letto:
2
Arredamento:
Assente
Mostra tutto
Prezzo Prezzo
€ 249.000
Rata mutuo Rata mutuo
€ 1.148 / mese
Proponi il tuo prezzoProponi il tuo prezzo

Classe Energetica

Questo immobile è esente da classe energetica
Anno di costruzione:
1990
Riscaldamento:
Autonomo
Tipo impianto:
A radiatori
Tipo alimentazione:
Metano

Ti interessa visionare l'immobile?

Fissa un appuntamento  Fissa un appuntamento

Richiedi informazioni

* Questi campi sono obbligatori

Calcola il tuo mutuo

Semplice e senza impegno
Anticipo

( % )
Mutuo

( % )

pochi semplici passi

inserisci i tuoi dati
Questionario completato
Grazie per aver richiesto un appuntamento senza impegno con un nostro Consulente del Credito e Assicurativo.

Hai inserito correttamente tutti i dati necessari e a breve riceverai una e-mail con un link da convalidare per inviare i tuoi dati.
Affiliato
Studio Grugliasco Sas
Viale Gramsci, 156/158 10095 Grugliasco (TO)

Il nostro staff


  • Assunta Donadio
    Affiliata

  • Mihaela Alexandra Bumbescu
    Coordinatrice

  • Simone Ferro
    Collaboratore

  • Francesco Puleo
    Collaboratore

  • Lorenzo Patruno
    Collaboratore
Viale Gramsci, 156/158 10095 Grugliasco (TO)
Zona: Grugliasco - Viale Gramsci - Centro - B.ta Paradiso - B.ta Quaglia
Mostra su mappa
Orari: LUN-SAB: 9.00-12.30 / 15.00-19.30
Affiliato
Studio Grugliasco Sas
Viale Gramsci, 156/158 10095 Grugliasco (TO)

2025 Tecnocasa Franchising S.p.A. - P. IVA 08365160152 - Via Monte Bianco 60/A 20089 Rozzano (MI). Ogni agenzia ha un proprio titolare ed è autonoma. Privacy policy | Policy utilizzo | Cookie policy